19 documents trouvés
NGM20 (P2123) Montage en façade avec appui mural appui au plafond et auvent actionnement manuel
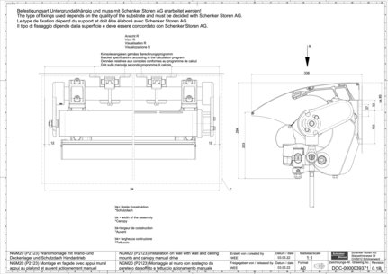
NGM20 (P2123) Montage en façade avec appui mural appui au plafond et auvent actionnement manuel
PDF  [1.2 MB]
DWG  [446 KB]
DXF  [1.5 MB]
PDF Téléchargement  [1.2 MB]
DWG Téléchargement  [446 KB]
DXF Téléchargement  [1.5 MB]